Descripción de la propiedad
Venta Casa Ciudad Jaragua SPS
Casa nueva en construcción disponible para la venta, diseñada para ofrecer amplitud, funcionalidad y un estilo contemporáneo en cada uno de sus espacios. Venta Casa Ciudad Jaragua SPS se desarrolla sobre un terreno de 562.23 v² con 337 m² de construcción, brindando áreas cómodas tanto en el interior como en el exterior.
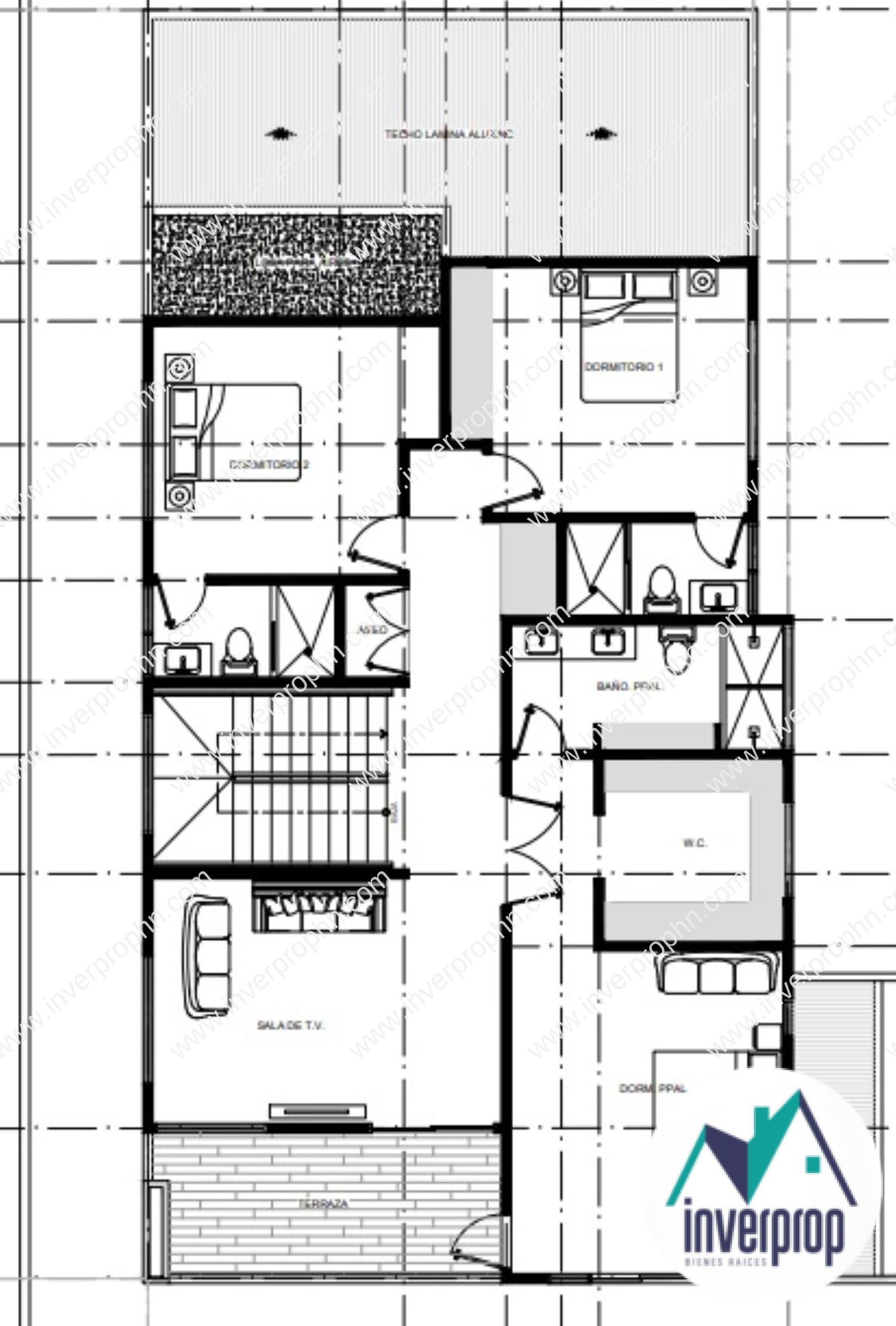
El interior contará con sala y comedor integrados, acompañados de una sala familiar ideal para momentos de descanso o entretenimiento. La cocina amueblada estará diseñada para un uso práctico y moderno, complementada con un desayunador que crea un ambiente acogedor para las comidas diarias. Desde las áreas sociales se tendrá acceso a una terraza que conecta con el patio, ofreciendo un espacio agradable para reuniones o actividades al aire libre.
La vivienda dispondrá de 4 habitaciones, cada una pensada para brindar privacidad y comodidad. La habitación principal incluirá walk-in closet y baño privado, mientras que el resto de los dormitorios contará con acceso a baños completos, sumando en total 4.5 baños en la propiedad.
Además, la casa contará con área de lavandería, cuarto de servidumbre con baño, y garaje para 2 vehículos, integrando todos los espacios necesarios para una vida práctica y organizada.
Venta Casa Ciudad Jaragua SPS cuenta con las siguientes características:
- 562 v2
- 337 m2
- 4 habitaciones
- Habitación principal con walk-in closet
- 4.5 baños
- Sala-comedor
- Sala familiar
- Cocina amueblada
- Desayunador
- Terraza
- Patio
- Lavandería
- Cuarto de servidumbre con baño
- Garaje para 2 vehículos
Una excelente oportunidad para adquirir una residencia moderna con amplios espacios y acabados contemporáneos desde su etapa de construcción a un precio de $ 493,000.00. Contáctenos para más información o para coordinar una visita y conocer todos los detalles de esta propiedad.
¡Búscanos en las redes sociales Facebook, Instagram, Twitter o Pinterest y nos encontrarás! Síguenos para ver nuestros anuncios inmobiliarios diarios.
Si esta Venta Casa Ciudad Jaragua SPS no cumple con sus expectativas o no se ajusta a sus necesidades o presupuesto, puede buscar en nuestra amplia gama de propiedades en venta otras opciones que se adapten mejor a lo que buscas..
Visite nuestro sitio web y encuentre propiedades para comprar y alquilar en San Pedro Sula. También puede utilizar nuestro motor de búsqueda avanzado para encontrar diferentes propiedades en función de parámetros como la ciudad, el tipo, el tamaño o el precio.
Nuestro sistema avanzado le permite seleccionar la especificación, la ubicación y el tipo de propiedad que está buscando y solo muestra los resultados de búsqueda que coinciden con esos criterios o características para facilitar el proceso de selección y la búsqueda de opciones disponibles.
INVERPROP BIENES RAÍCES es la única agencia inmobiliaria en Honduras con cobertura a nivel nacional, estamos seguros que encontrará lo que busca gracias a nuestra amplia cartera de propiedades y la gran comodidad que ofrece nuestro sistema a nuestros usuarios, lo más innovador y moderno en Honduras es el portal inmobiliario de mayor calidad, más completo y mejor equipado del mercado centroamericano.
- Principal and Interest
- Property Tax
- HOA fee
- Private Mortgage Insurance






